混凝土車輛提升機
MB型電動葫蘆半門式起重機
YLH型冶金電動葫蘆橋式起重機
YLD型冶金電動單梁起重機
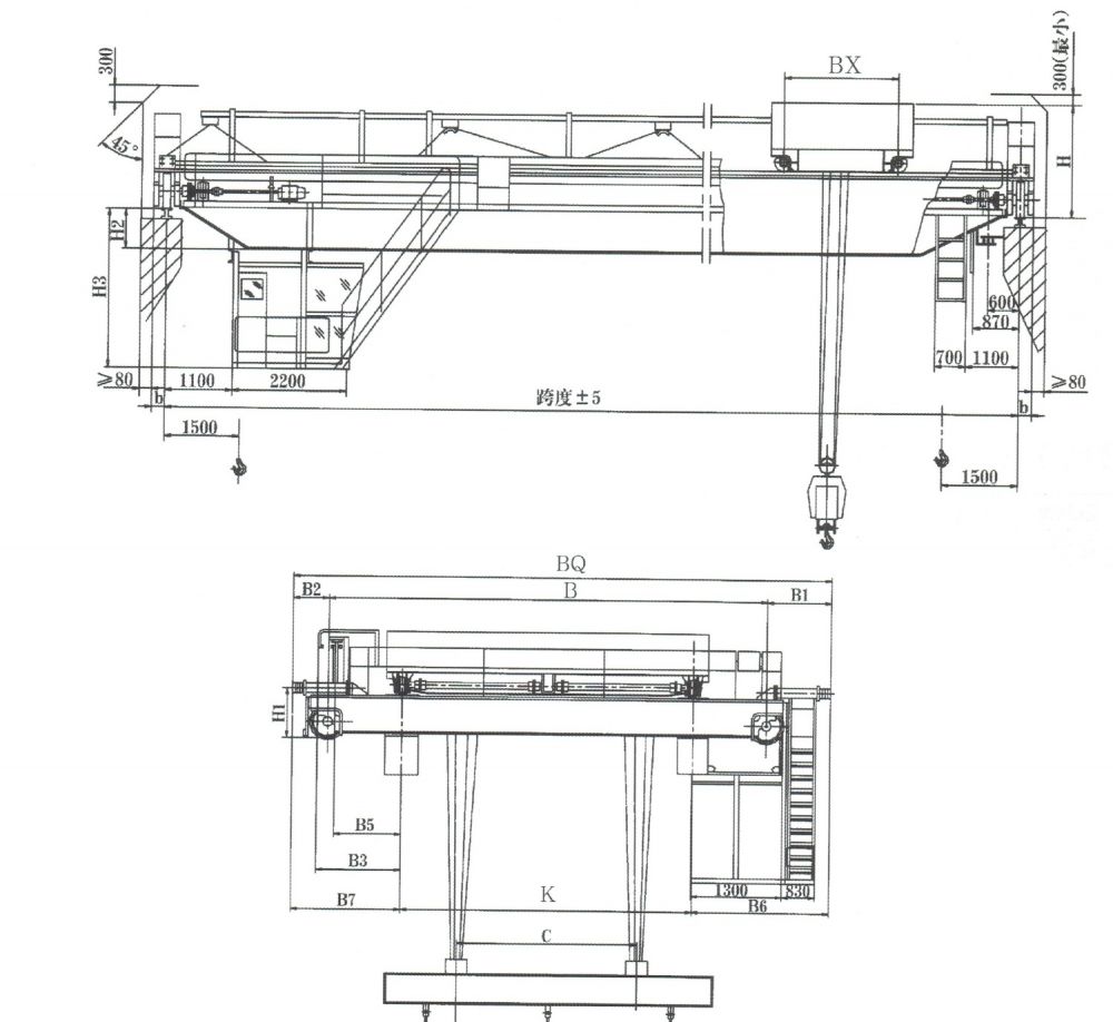
MHE型雙起升電動單梁門式起重機(桁架式)
軌道式集裝箱門式起重機(吊具旋轉)
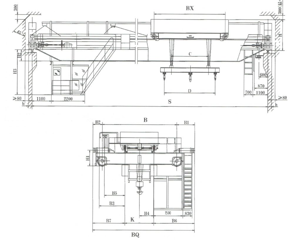
MHE型雙起升電動單梁門式起重機(鋼板箱梁式)
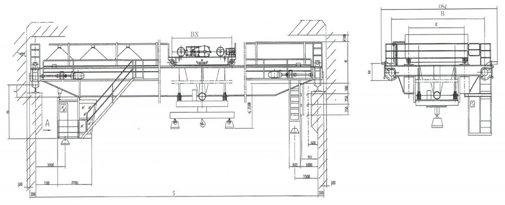
BMH型電動葫蘆半門式起重機(鋼板箱梁式)
夾鉗橋式起重機
超長電磁掛梁橋式起重機
QZ型垃圾抓斗橋式起重機
XG型電廠用電動懸掛過軌起重機
LDE型電動單梁起重機
LD型電動單梁起重機(16~30噸)
LD型電動單梁起重機(1~10噸)
上旋轉伸縮掛梁電磁橋式起重機
下旋轉伸縮掛梁電磁橋式起重機
QCL型電磁掛梁橋式起重機
MHZ型電動單梁抓斗門式起重機
QG型掛梁橋式起重機(平行主梁方向)
QG型掛梁橋式起重機(垂直主梁方向)
QL型旋轉電磁掛梁橋式起重機
LDP型電動單梁起重機
多支點懸掛起重機
QD型吊鉤橋式起重機(500/100~800/150噸)